盛大德馨府160平新中式风格装修设计效果图
2018-09-12 17:04:30 查看人数 1074
案例面积:160㎡
案例户型:四居室
装修造价:约20万
案例风格:新中式
本案的设计风格是新中式风格,业主进店要求很明确,就要新中风格。我考虑到业主夫妻两偏年轻,所以加入了很多现代时尚的元素,整体看上去新颖清爽。户型面积160平,装新中风格还是很合适的,效果图出来感觉很大气。
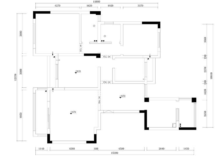
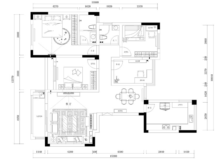
户型图
户型上最大限度保留了原始结构,四室两厅两卫。北阳台的小阳台打掉了把厨房空间延伸了,这样厨房空间大了不少。书房的飘窗打掉做书柜,既增加空间面积也增强采光。
客厅
整个客厅区域是新中式风格展现的最淋漓尽致的空间。应客人的要求,我在拐角的地方流出一台钢琴的拜访区域,女业主是位音乐才女!吊顶简单大气,电视背景墙采用大理石上墙,与地砖颜色相呼应。
餐厅
餐厅区域的主要功能是休闲饮食的地方,所以没做过多的造型,不会对客厅造成喧宾夺主。设计上做了个简易的屏风,三幅山水画,极具新中式既视感。
