柏林春天123平北欧风格效果图
2018-08-30 18:11:29 查看人数 569
案例面积:123㎡
案例户型:三居室
装修造价:约16万
案例风格:北欧
本案例是柏林春天123㎡的二手房改造,业主是三口之家,有一个可爱的宝宝,业主是一位自由工作者,平时喜欢到处拍摄,所以在考虑设计的时候提前考虑了空间的储藏性能的前提下,因为业主对新家的想法是希望空间视觉感比较清新和简洁,同时还希望新家有文艺气息,所以在设计的初期进行了几次沟通,和业主确认了整体风格,定格本案例北欧风格!
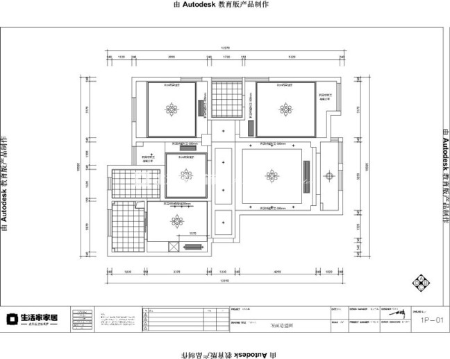
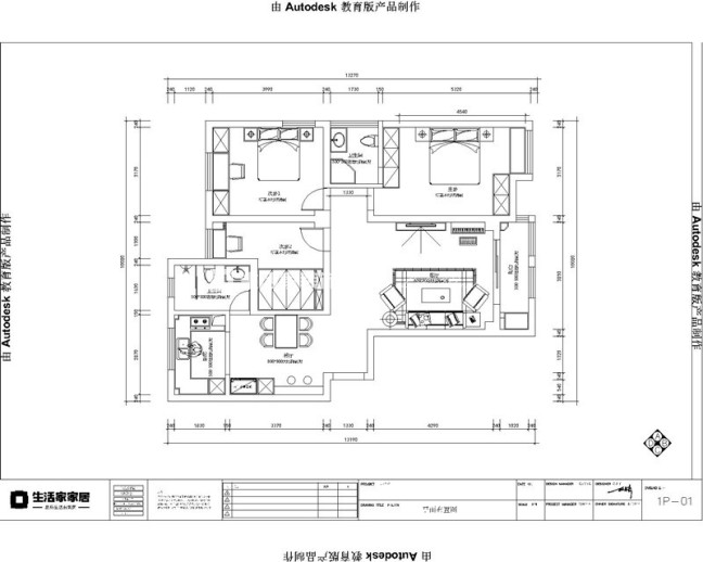
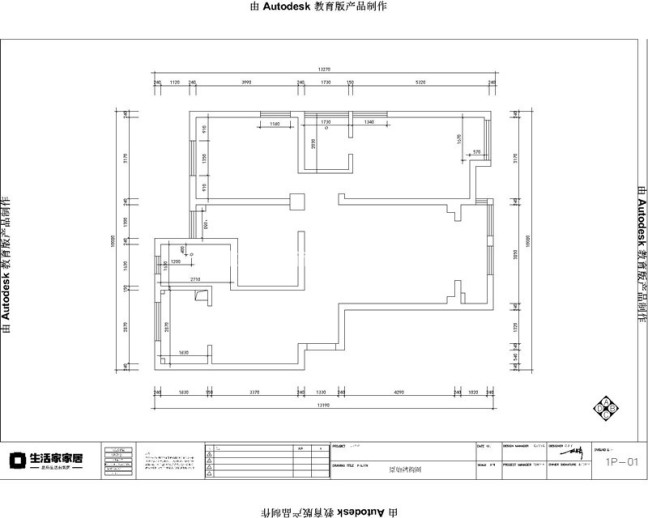
户型图
整个户型属于东边户,东边就是高架,主卧刚好位于东边,考虑到主卧离大路太近太吵的因素下,把主卧东边靠路边的窗户封掉,并不影响采光和通风,因为整个户型布局原因,客厅卫生间无法改造,就只能在次卧做榻榻米来解决空间使用率问题!客厅卫生间是在厨房和次卧夹缝中产生的,客厅和餐厅不在一个纬度上,其他的各方面很可以。
客厅
整个风格是按照北欧风格来进行搭配的,地面采用高级白全抛釉亮光地砖铺贴,整个墙面采用高级灰水性乳胶漆涂刷,既保证到整个家里的环保性,还起到了很好的装饰效果,不会显得很单调,顶面没设计很复杂的造型,因为有中央空调,所有四周走一个直线顶装饰下,整个家具上选购的是很有北欧代表性的布艺沙发,铁艺的麻绳灯,黄白结合的茶几起到一个很好的点缀。
餐厅
餐厅是一家人主要进餐的地方,也可以是闲聊游戏的地方,在合理的安排完餐桌的具体位置后,还有的空余空间刚好用来设计一个吧台,吧台前面贴的是成品装饰砖,一边挂一个铁艺带点后现代的工业灯,吧台旁边是一个工业造型的装饰柜,摆一摆业主自己的摄影作品,外出旅游购买的一个很有意义的纪念品!
