琥珀瑞安家园89平现代简约装修效果图
2018-08-07 16:13:34 查看人数 1287
案例面积:89㎡
案例户型:三居室
装修造价:约1186万
案例风格:现代
这套作品是琥珀瑞安家园89平的小三房户型,这个面积在这个楼盘里算中小户型。因为本案的业主是一位单身的IT男,平时喜欢简单安静,所以主色调按冷色来设计的。目前没有对象,按男业主一个人的喜号来设计的。
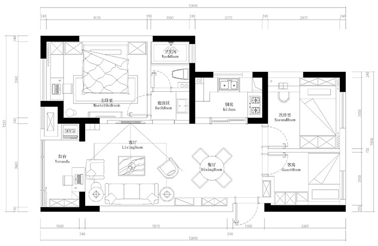
户型图
中小户型小三房户型,进门客餐厅阳台一体的,客餐厅采光性和通风性比较好。户型稍微欠缺的地方是猪油主卧室朝南,两个次卧朝北不向阳。
客厅
户型是客厅和阳台一体的,采光和通风性很好。电视背景墙用的是人工大理石,整个空间显得现代时尚,地板用的是幕得进口强化地板,浅灰色,被广大年轻男性业主所钟爱。家具和软装搭配处处散发出阳刚的男性魅力。
卧室
主卧朝南带飘窗,考虑到业主从事的行业需要经常加班,把飘窗打掉了,一半做书桌,一半做储物柜。整个卧室的气氛也是很阳刚的。简单日式的原木色为主,保留卧室的空间,没有放大衣柜,在床头做了一组储物柜。
餐厅
客人喜欢使用圆桌,所以设计上在餐厅上方做了圆形的吊顶与圆形餐桌相呼应,使客餐厅空间分割出来。进门打的一组餐边柜和酒柜的组合。上面可以储物,可以放下随身的小物品。
