凯旋门119平北欧风格装修效果图
2018-08-06 17:25:34 查看人数 1736
案例面积:119㎡
案例户型:四居室
装修造价:约1451万
案例风格:北欧
凯旋门119平户型,南北通透户型,是常规户型。属于客人的改善型住房,主要是有两个宝宝了,换个大户型的住着舒服点。业主夫妻两是享受生活品质,偏浪漫型的。整体家装设计偏暖色为主,简单浪漫。
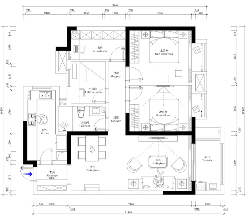
户型图
119平南北通透户型,采光和通风都非常好,优质户型。两个卧室朝南,一个储藏间改为书房。最大的亮点是厨房尺寸偏大,宽敞。户型没有大的改动,工程造价没有浪费的地方。
客厅
客餐厅是一体的,客厅移门打掉了,把空间延伸到阳台上,装的窗帘隔热隔光的同时也区分了生活阳台。沙发背景墙用了大胆的粉色,是女业主很喜欢的颜色,时尚丽人。电视背景墙没有做造型,买的成品组合柜,方便放放小物品。
卧室
主次卧室都是选用的乳胶漆调色,卧室是用来休息的场所,所以选择的是冷色调的灰色。进来卧室就有一种敬慕的感受,让人身心舒适,自然地有一种想要休息的感觉。床头以及床头柜符合北欧家具风。
餐厅
餐厅也没有特别需要设计的地方。餐桌选择与整体空间搭配,是大理石台面,好打理也比较有质感。餐边柜和餐桌是配套的,放放临时物品。整个客餐厅的地板是北欧最经典的强化地板颜色。
