享受光阴中的漫生活
2018-09-05 17:00:37 查看人数 1755
案例面积:98㎡
案例户型:二居室
装修造价:约18.8万
案例风格:北欧
本案是清爽简洁干净的北欧风格,业主是一对年轻的夫妻,追求简单洒脱的生活态度,摒弃复杂造型设计,简洁明快。以简洁明快为主要特点,重视室内空间的使用效能,强调室内布置按功能区分的原则进行,家具布置与空间密切配合,主张废弃多余的,在色彩和造型上追随流行时尚
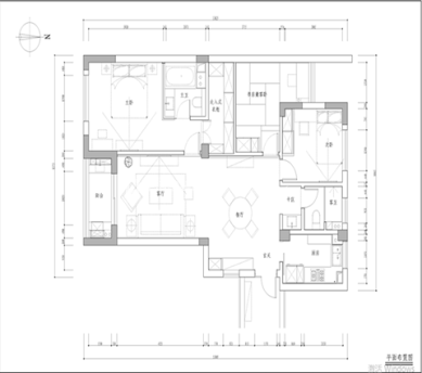
户型图
原始户型图
客厅
电视背景,跟餐厅背景为了保证整体,设计感。主卧与次卧房门采用隐形门设计。印证的浑然天成,天人合一的感觉····
卧室
主卧卫生间采用半通透设计,既可以避免潮湿,也让整个空见看起来更宽敞,设计师在这个空间利用上面为客户考虑了很多···既有鲜明的采光,另有通透的空间感···
餐厅
进门的餐区,鞋柜与餐边柜做了一体化设计,使用起来非常方便,圆形的餐桌带着中国风的韵味又不失现代的感觉··搭配的极好···
次卧
儿童房间墙面设计构图要生动活泼,具有意话殷的梦幻越昧,能引导儿童神思遐想。墙壁上的撞色系色彩让孩子充满了梦幻的感觉···
卫生间
公共卫生间采用干湿分离设计,使用上更加方便,卫生清理起来也很容易,在家里来亲朋好友时也方便了自己于家人。
