首开香溪郡190㎡新中式
2019-12-24 11:00:44 查看人数 4643
案例面积:190㎡
案例户型:三居室
装修造价:约27万
案例风格:新中式
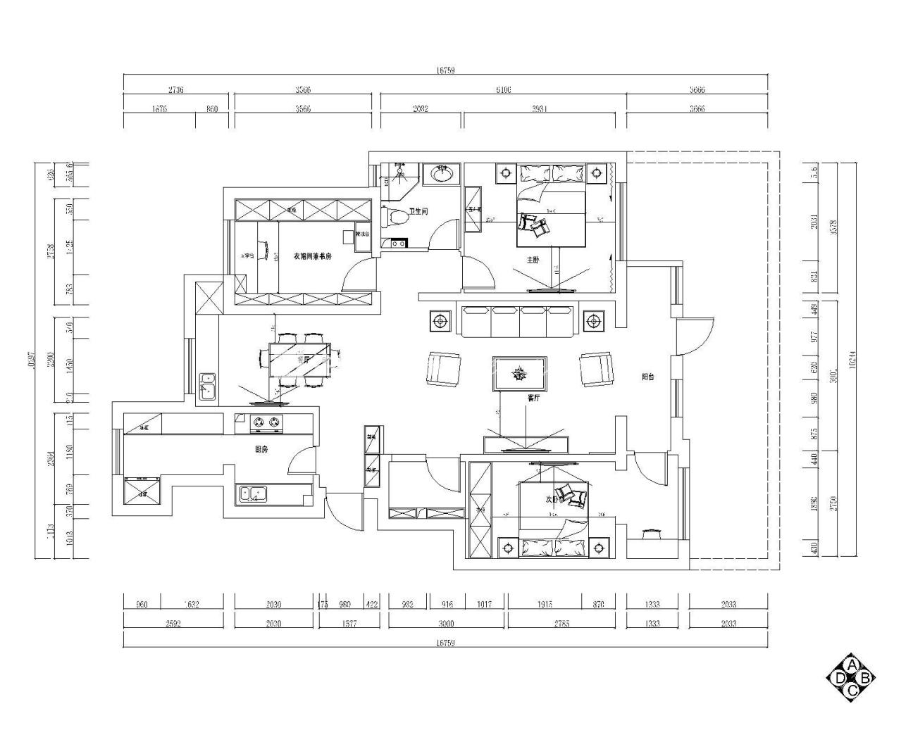
三室两厅两卫,建筑面积约190平米,户型内房屋布局合理,客厅开间约4.5米,袋型空间,有利于客厅内部的布置,超大阳台,可以直通室外花园。独立餐区,储物空间较大,主卧开间3.9米,是较为宽大的卧室开间尺寸,门窗位置合理。次卧开间3.6米,较为舒适。户型各房间设计规范合理。客厅开间4.2米,袋型空间,有利于客厅内部的布置。客厅外带有阳台,能够直接连接室外空间。
户型图
原始户型图
客厅
简约的生活方式,人人慢慢倾向于注重空间感觉上的舒适程度,而不仅仅是硬装造型上的复杂与否。客厅区域与厨房空间的完美结合,使的整个空间的纵向与横向拉伸,让整个空间现代感觉十足。一家人晚上下班回到家,榨一杯甜美的果汁,依偎在沙发上,景色是那样的温馨美好。
卧室
如果说客厅是一家4口温馨的港湾,那么主卧就是两口子“解腻”的场所,浅色的墙面搭配上稳重的床品,让这个空间又清凉又温馨,开发商标配的飘窗更是让整个主卧的空间感上升一个档次。通过软装的配饰,让飘窗不再是大理石台面那样简单,扔上3两个颜色鲜艳的靠包,阳光充足的时候盘腿坐在上面,也可以放下所有的角色,所有的重担,我就是我!
餐厅
与传统中式风格相比,新中式风的整体线条更简洁利落,主要体现在软装的选择上。家具是简约而具有线条感,而大多的软装则保留了具有东方特色的基本线条,讲究的是形神。
次卧
卧室,不仅仅是休息的场所,合理的应用定制家具,卧室还可兼备书房的作用,一让整个空间的功能需求更加丰富,利用一个窗户,用定制家具做出U字型的书柜,两边到顶的书柜,对于书籍较多的客户简直就是福音,阳光明媚的午后,选一本自己喜欢阅读的书籍,靠在飘窗的软包上,是那样的惬意,最美的生活也不过如此吧
卫生间
新中式卫生间设计要注重整洁干净大方,黑白灰经典时尚的配色体现了现代工业设计理念,实木柜体和木地板,显得古朴稳重。
