北京平谷李俯新中式别墅
2019-12-21 09:58:14 查看人数 9341
案例面积:230㎡
案例户型:别墅室
装修造价:约50万
案例风格:新中式
本案是地上两层的独栋别墅空间。如何让地上空间充分享受到户外院落的景观,又如何让空间充分得到阳光和空气感是设计师着力打造的重点。将采光纳于室内,与地面平齐,让客厅开间面与户外接触面达到最大化,既满足了客厅全开敞视觉需求,又保证了地下空间的光线。这是居者诗画生活的首要条件。
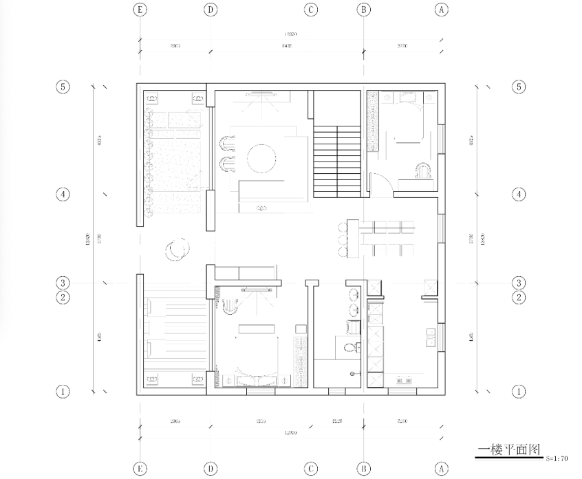
户型图
原始户型图
客厅
客厅于一幅长轴画卷展开,“韩熙载夜宴图”的淡描场景图从客厅延续至餐厅,将两个功能空间连为一体,让人日常起居无论于室内还是户外均似畅然入画,吸纳山水之灵气。 客厅主景墙运用硬包和石材拼接湖面的设计,犹如一轴素纸长卷,任你在想象中构建自己理想的生活画面。台面上的艺术摆件在素色的背景下,安静而有力,意味深长。
卧室
园林建筑中,有顶,四面敞开为“亭”。亭者,停也。人所停集也。此处作为主人与朋友聚会的区域,左右可顾盼读书区和鉴赏区,在此品茶畅谈,也许会忘了时间。
餐厅
餐厅以岛台作为端景,增添生活情趣与便利,空间三面环窗,景观可随处纳入视野。家俬饰品中落霞红和湖水相辅相映,静谧中透着欣悦,宜静宜动。
次卧
建于水边,凭栏而望之筑为“榭”。通过下层墙面饰以玻璃镜面无限反射的作用效果,营造出湖水的意境。女主于此养心调香、插花,安享岁月静好的闲暇时光。
卫生间
无论春夏秋冬,都能听到各种情趣的声音,别有一番韵味。如遇落雨,在此一薰一莸,边听雨打芭蕉、翠竹、荷叶之声。
