颜值爆棚北欧风
2018-06-15 14:55:16 查看人数 6004
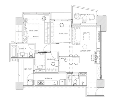
案例面积:160㎡
案例户型:四居室
装修造价:约38万
案例风格:北欧
本案原始户型周正,空间宽敞,采光充足,唯一的缺点是客/书房对面的厨房狭长,自然光不足,因此设计师想到了采用“室内窗”的方法来解决这一问题。前期沟通中,因为业主无意间的一句 “虽然说不清北欧风到底哪里好,但就是很羡慕电视杂志中那些北欧家居”,设计师决定为小夫妻俩实现他们的家居梦想。
户型图
平面布局图户型图
客厅
客厅空间的布置重点在于掌握了协调、对称的技巧,布艺的巧妙搭配,新功能区间的融入,每一个细节的铺排,都呈现出令人舒适的氛围。
卧室
床头浅紫色乳胶漆搭配全套原木色床及床头柜,紫罗兰色窗帘软饰、素色碎花床品,共同打造出温馨的私人空间。多功能衣柜让卧室空间运用最大化,满足了客户的储物需求。
餐厅
把洗菜盆从厨房拿出来跟餐桌设置在一起,让厨房空间得到释放,也让餐厅的实用性得到提升。于此同时,从客餐厅全视角我们可以看到,沙发背景墙被设计师巧妙的来了个“凿壁借光”,设置了家装中不太常见的“室内窗”,让沙发背景不再单调,同时也完美的解决了对面厨房的采光问题,可谓处处见心机~
次卧
是次卧也是书房的多功能房,放置书桌的这边地面做了抬高,设置成简易地台式,方便后期亲友来访化身榻榻米。
卫生间
经典的黑白配色显得简约、耐看,全套TOTO洁具细节处彰显品味。
