世茂璀璨世家 140㎡ 现代轻奢
2025-10-04 11:12:24 查看人数 119
案例面积:140㎡
案例户型:三居室
装修造价:约19万
案例风格:轻奢
浅灰深棕的皮质沙发、单人椅,搭石材茶几与边几,柔润皮质碰利落石材,现代感里藏着刚好的踏实温度。
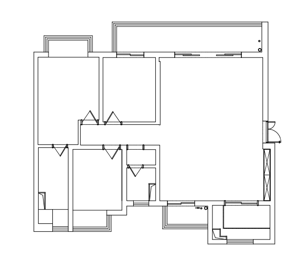
户型图

户型分析及改造 1.有较长的休闲阳台,功能利用比较高; 2.整体户型方正,且每个空间都有采光; 3.整体无太大改动,只是增加储物空间。

玄关

一推开门,左手就是整面温润原木玄关柜,中间留置物台,下方悬空换鞋区,内置感应灯带,一抬脚就亮,细节里藏着满满贴心。


置物台背衬镜面,悄悄把空间视觉拉得更开,储物柜门做了隐形拉手,这个小细节,刚好治愈强迫症的“秩序感”。

客厅

客厅以灰咖调温柔打底,电视挂在咖色背板上,下方配灰色石材置物台,清清爽爽的质感,恰好熨帖对整洁的偏爱。


浅灰深棕的皮质沙发、单人椅,搭石材茶几与边几,柔润皮质碰利落石材,现代感里藏着刚好的踏实温度。


主灯加灯带的设计,既撑住空间大气感,线条又利落得刚好。家具饰品极简却藏着生活细节,正合主人“少即是多”的心意。


地砖通铺至阳台,让阳台自然成为客厅延伸。开放格局顺了空间逻辑,区域独立却紧密相连,互动感与实用性都暖到了生活细节里。
过道

过道尽头挂幅玩尽光影的画,配顶端筒灯,光与画轻轻交织,晕出层次多变的影,细节里藏着让人心动的小巧思。
厨房

灰色调的墙地砖配木质橱柜,质感刚好撞出温柔的默契。

L形橱柜顺着墙体舒展,储、备、洗、煮功能自然串连,动线顺得像日常的呼吸。
餐厅

吧台与餐桌的衔接,悄悄定了就餐区的松弛调性,石材桌搭皮质椅,质感刚好合味,顺出两把可升降金属高脚椅,轻松架起休闲吧台。


玄关柜同款色的到顶餐边柜,中间留置物区或可移动排插做西厨,虚实错落得刚好,整面柜的厚重感都变温柔了。


冰箱悄悄藏进餐边柜,厨房瞬间松快了,布局顺得像日常的默契,实用得刚好合心意。
卧室

休息区整铺原木地板,暖白乳胶漆轻裹墙面,先给空间敷一层清爽的明亮。

半墙背景用咖色+原木饰面板分色,线性元素串起两块区域,好看里藏着本真的舒服。

主卧到卫生间的过道改衣帽间,浅灰的温软,玻璃的通透,灵动自由悄悄蔓延开来。


去掉多余装饰,留白留得刚好,卧室便有了想象。米色系软装铺陈舒适感,软包床头、丝质被单、棉麻帘毯,简单干净里藏着满室温馨。
次卧

两个小次卧延续主卧的温柔,半墙配同色床品窗帘,层次悄悄叠起,添幅画或几株绿,藏着刚好的巧思。
