在线咨询
免费设计
免费量房
免费验房
京东生活家 / 装修案例 / 幸福满庭套三马卡龙混搭

幸福满庭套三马卡龙混搭

2021-04-09 15:45:36 查看人数 2520

案例面积:86

案例户型:三居室

装修造价:约14.6

案例风格:混搭

整体空间很方正做了主卧衣帽间套房规划,色彩选用了清新的马卡龙在空间加入一些收纳、光源和线条让空间更灵动

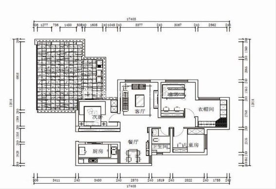
户型图

户型图幸福满庭套三马卡龙混搭装修案例

整体空间结构比较方正主卧规划了衣帽间完成主要的收纳区域

客厅

飘窗幸福满庭套三马卡龙混搭装修案例

墙面做了线条装点给空间做了区域分割,搭配暖咖色和粉色与爱马仕橙,有马卡龙的可爱也有,爱马仕橙的灿烂

厨房

吊顶幸福满庭套三马卡龙混搭装修案例

厨房区域主要考虑功能,内嵌冰箱,让空间更干净利落

案例设计师

已有 人预约

查看主页

精品案例推荐

查看更多
光明璟宸 96㎡ 复古风

光明璟宸 96㎡ 复古风

锦粼天曜 190㎡ 意式轻奢

锦粼天曜 190㎡ 意式轻奢

滇池澜庭 140㎡ 意式风

滇池澜庭 140㎡ 意式风

绿地东海岸 136㎡ 美式混搭风

绿地东海岸 136㎡ 美式混搭风

Hi~ 我是小葵 装修报价可以找我哟~