美泉悦府+115+现代简约
2021-03-30 10:02:13 查看人数 2178
案例面积:115㎡
案例户型:三居室
装修造价:约25万
案例风格:现代
客户为三代同堂的一个80后家庭,房间要求一个主卧室,自己住,一个老人房,一个儿童房,目前两个小孩,考虑高低床。储物功能要多,小孩房和阳台要有独立的书桌。整体风格要求现代,时尚温馨。
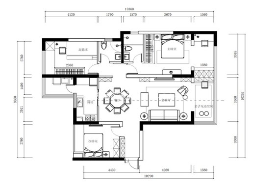
户型图
房子是一个非常标准的3居室,户型方正,通过合理的布局。可以很好地满足一家人的生活,和小朋友的活动空间。
客厅
整体色调用的浅色系,因为本案子楼层位于二楼,采光不是非常高,用浅色拉升空间感。墙面采用咖白色与顶面白色进行色彩区分。一方面有色彩对比,另一方面完全用一个颜色空间显得呆板而单调。浅白色整体偏一点点暖色,居家以温暖的颜色更加有幸福的感觉。吊顶采用简单的边顶把以前的梁及管道包住,不占用太多的空间。墙面主要用乳胶漆进行块面与块面的对比。简约而不简单。充满高级感。
卧室
卧室也采用了极简的颜色,配合着灰咖色使得简单之中又有点睛之笔。儿童房为小朋友专门打造了造梦空间。上下床也满足了小朋友不同年龄阶段的需求。
