八一电影制片厂住宅小区95㎡日式
2020-12-11 16:02:33 查看人数 22171
案例面积:95㎡
案例户型:二居室
装修造价:约15万
案例风格:日式
此房为业主一家三口人居住,考虑到业主在八一电影制片厂上班,比较喜欢传统文化,这套房子的设计风格定位为新中式+日式风格,阳台和客厅的设计是整套设计的亮点,既能满足风格的要求,也能满足业主对生活品味的追求。两个次卧室拆掉中间墙体,采用打通设计,需要单独使用的时候可以用推拉隔断分隔开。
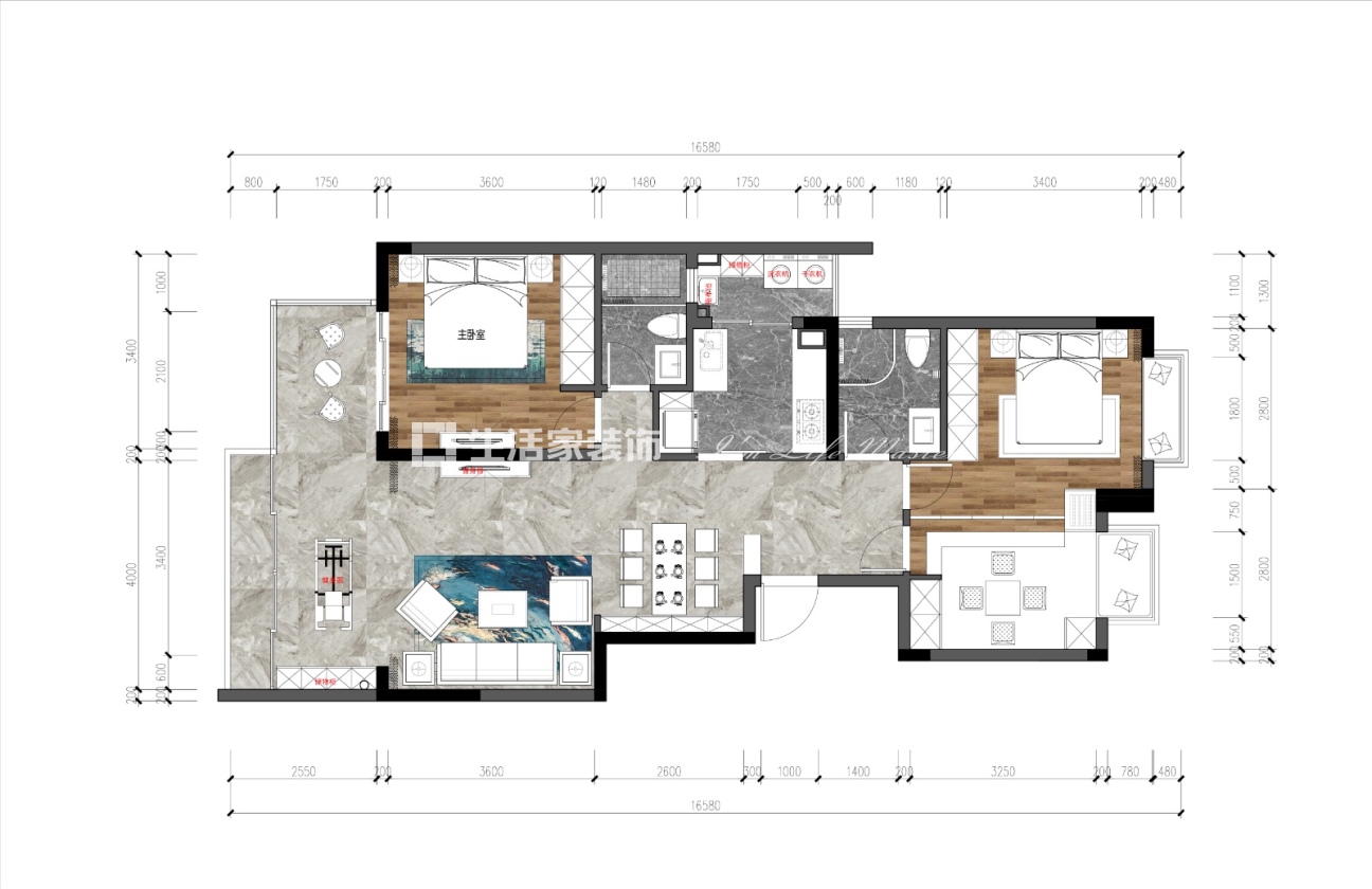
户型图
两房两厅一厨一卫,建筑面积95平米,户型功能设计比较合理,客厅面积最大,开间尺寸4米,而且阳台面积也大,除了做晾晒以外,还能做休息观景阳台。主卧室开间尺寸还可以,有3.4米,原窗户改成推拉门。次卧室面积都稍小,可以作为客房间书房设计,另外一个卧室面积也不大,作为儿童房设计还是够用的。
客厅
客厅和餐厅一体,客厅飘窗在东方,采光通风良好,餐厅的位置设计了酒柜,酒柜中间可以放置微波炉及咖啡机。
卧室
卧室布局没有太多的变化,主要满足平时的生活需求,为了增加面积,打掉了主卧与阳台间的窗台,改为推拉门。衣柜采用入墙式设计,美观实用。
厨房
厨房的阳台设计成了洗衣房,洗衣机+干衣机的设计更方便使用。
次卧
书房与儿童房做打通设计,同时兼具客房的功能,榻榻米的设计既增加了储物空间,也可以给孩子更大的活动空间。
