孔雀城80㎡北欧
2020-09-15 16:04:06 查看人数 1781
案例面积:80㎡
案例户型:二居室
装修造价:约13万
案例风格:北欧
本案采用了空间借用手法,一居改两居,采用北欧风格,打造温馨小宅。客厅阳台隔出小次卧,成为孩子的儿童房,具有休息、储物、学习等功能。
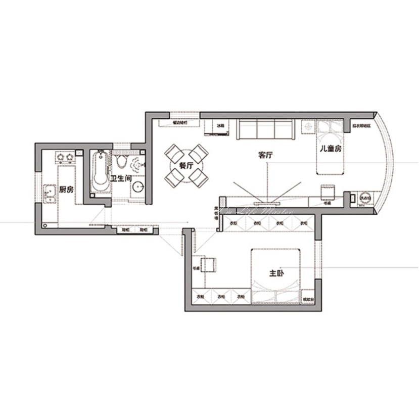
户型图
本案采用北欧风格,打造温馨小宅。一居改两居,采用了空间借用手法。客厅阳台隔出小次卧,成为孩子的儿童房,具有休息、储物、学习等功能。
客厅
客厅空间用推拉窗隔出儿童房,最大地利用空间,又保证光线充足。
淡雅的沙发,搭配大储物功能的衣柜式电视柜,空间利用率高又开阔。
卧室
主卧的嵌入式衣柜设计
减少柜体在空间的占有量,更大的体现出主卧的视觉感官。
卫生间
卫生间放入嵌入式浴缸,让业主下班回家后能泡澡驱除一天的疲惫。
