易构空间70㎡简美
2020-01-08 15:41:23 查看人数 4094
案例面积:70㎡
案例户型:二居室
装修造价:约10万
案例风格:美式
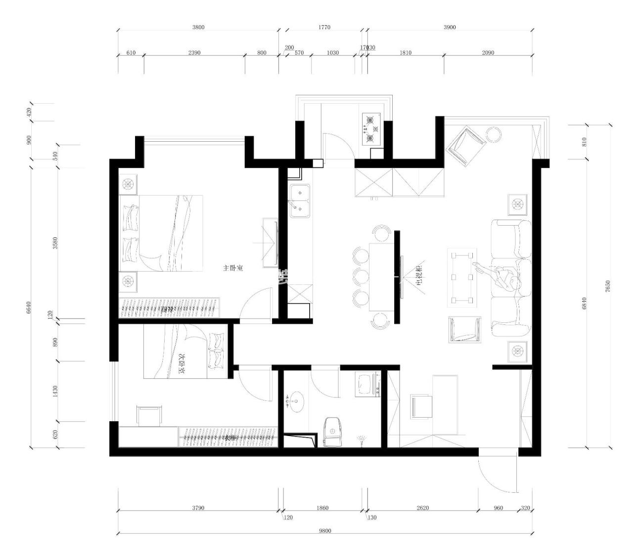
此户型为两室两厅一厨两卫格局,户型比较方正,东南朝向,主卧室及客厅面积比较大,次卧室及厨房面积较小,业主对厨房不是很满意,因为经常去国外,希望设计两个厨房,西厨做成敞开式的,再利用厨房的阳台做为中厨,开放式的西厨空间和客厅空间做一体式设计,原有的餐厅功能作为书房设计,方便业主在家学习及办公。
户型图
此户型为两室两厅一厨两卫格局,户型比较方正,东南朝向,主卧室及客厅面积比较大,次卧室及厨房面积较小,业主对厨房不是很满意,因为经常去国外,希望设计两个厨房,西厨做成敞开式的,再利用厨房的阳台做为中厨,开放式的西厨空间和客厅空间做一体式设计,原有的餐厅功能作为书房设计,方便业主在家学习及办公。
客厅
原户型客厅和餐厅是一体的,采光和通风都比较好,但是客户感觉客厅还是不够大,而且客户比较喜欢开敞式厨房,所以对原户型做出了修改,去掉了厨房与客厅之间的墙体,把电视背景墙向客厅方向移动,加大厨房的面积,方便做岛柜。中厨改到了原厨房的阳台上。餐厅的用餐功能转移到了厨房的岛柜上,原餐厅的位置设计成书房,方便学习及工作。
卧室
卧室布局没有太多的变化,因为安装了中央空调,所以在衣柜上方设计了吊顶,方便安装空调的主机也方便衣柜可以做到顶,充分利用衣柜的空间,避免出现卫生死角。卧室的小阳面积不是很大,设计成休闲区,闲暇时可以看看书,晒晒太阳。
