保利学府城 现代轻奢 88㎡loft
2019-12-04 13:57:57 查看人数 946
案例面积:88㎡
案例户型:三居室
装修造价:约20万
案例风格:轻奢
现代轻奢,是都市群体对高品质生活细节的追求。除了简洁的造型以外,通过一些精致的软装元素来凹显质感,从而彰显出来高品质的生活方式。
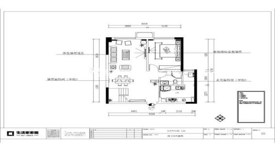
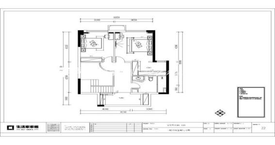
户型图
业主定位:是一对年轻夫妇,很有自己的想法,喜欢简洁而不落熟套的设计,风格就喜欢为舒适又时尚的现代轻奢。
客厅
方案考虑全屋无主灯设计,整体搭配以冷色调为基调,局部点缀和木色系为空间增加活力,并加以少量蓝色调和。
卧室
家具选品顺延整体简约的风格选择了简约精致的款式,同时融入了适量皮质和金属增加空间得气质和质感,整体营造温馨大气有质感的氛围。
