对品质保持不懈追求——奥克斯广场135平后现代家装案例
2018-12-04 14:52:04 查看人数 1589
案例面积:135㎡
案例户型:二居室
装修造价:约27万
案例风格:现代
房屋设计使用后现代风格,干净利落却不失个性与新贵的特质,体现了年轻人对于美好生活的向往和追求。轻奢是一种低调却积极向上的人生态度,高性价比和高品质的设计风格也成为新时代年轻人的不二选择。
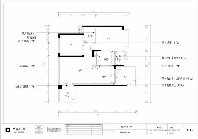
户型图
从结构来讲,开放式厨房的设计让整个餐厅空间更加开阔,吧台的设计不但为小两口添置了一个浪漫的场所,更为后面结婚生子照顾小孩提供了方便,可以一边做家务一边观察小孩的行动,一家人一起做家务的温馨氛围。同时拆除了一些多余的墙体,使得房屋的视角更加开阔,宽敞的空间感给人更加放松与舒适的居住体验。
客厅
客厅整体色调以浅色调为主,高级灰的电视墙体设计,给人一种理性、祥和、对品质保持不屑追求的生活态度,搭配原木的木地板相得益彰,一种原始的放松从回到家看到客厅的第一眼便油然而生,通透的空间感加上落地的方格窗户,使得客厅敞亮却又不是静谧,是居家休闲放松的首选之地。
餐厅
餐厅吸取了现代咖啡馆的一些元素使人放松精神,舒缓神经。餐厅墙面采用棕红色元砖的后现代风格,让餐厅显得俏皮而又温情。当工作一天后回到家与家人享受一顿美餐,再小酌几杯,在纷繁的都市生活中,感受属于自己和家人的安宁。是的,生活不只有远方和苟且,还有需要守护的那份最淳朴的温情。工业风的隔断,黑的门与门套带来的重色,不但带来了视觉冲击力,更使整个空间的功能划分棱角分明。
