万达华府144平现代简约装修设计效果图
2018-09-12 18:30:23 查看人数 572
案例面积:144㎡
案例户型:四居室
装修造价:约17.5万
案例风格:现代
户型非常漂亮,南北通透。140平的户型大小,做后现代是非常漂亮的。这套作品业主本人,包括设计师都非常满意。从瓷砖的颜色,吊顶,背景墙以及全屋的乳胶漆调色都非常协调,简单中透露不平凡。
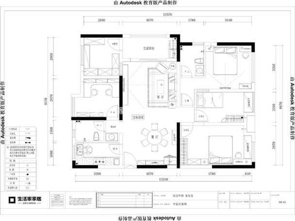
户型图
户型因为是南北通透,且没有浪费的地方,所以没有做大的改动,两个卫生间都保留。朝北房间飘窗打掉了,其他墙体封起来,做个小型的衣帽间,从阳台开门。
客厅
整个客厅简而不凡,最出彩的地方是电视背景和地砖的颜色。电视背景墙尺寸比较长,采用柜体造型,既增加储物空间,电视摆放从视觉上看也不觉得小气。地砖颜色选的真的是很漂亮,全抛釉大地砖,很有质感,立体效果很明显。
卧室
卧室主要就是休息的场所,顶上走走了一圈石膏线点缀下。床头做的是软包搭配,家具建议选择皮质床头,后现代感强烈。
餐厅
餐厅宽度充足,建议业主选择圆桌餐桌,很大气。吊顶是客餐厅一体,整体延伸出去,空间拉伸的很大。从背景墙把客餐厅做了一个简单的区分。餐厅背景墙用的奶咖色调色,颜色很耐看且搭配的很协调。
